О товаре:
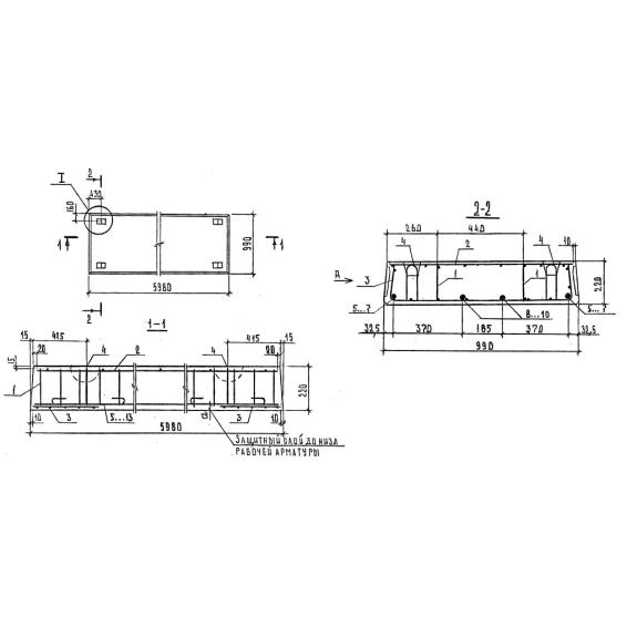
- Длинна: 5980 мм.
- Ширина: 990 мм.
- Высота: 220 мм.
- Вес: 3200 кг.
- ГОСТ, Серия: Серия 1.243.1-5 скачать
- Объем бетона: 1,28 м3
- Геометрический объем: 1,3024 м3
Стандарт изготовления изделия: Серия 1.243.1-5
Панель беспустотная П 60-10-8 АIV-2 представляет собой очень прочное строительное изделие прямоугольной формы, используемое при возведении общественных и бытовых зданий с кирпичными стенами. Элементы разработаны по Серии 1.243.1-5 и запроектированы единой высотой, которая должна составлять 220 мм. За счет своих конструктивных особенностей, панели очень легко устанавливать, тем самым осуществляется быстрая укладка перекрытий и самого здания в целом. Регламент допускает применение данных изделий в помещениях со слабо и среднеагрессивной средой. Предел огнестойкости индустриальных элементов составляет один час.
Расшифровка маркировки
Обозначение панелей перекрытий осуществляется по ГОСТ 13015.2-81. Маркировка наносится на одну из боковых сторон строительной конструкции при помощи штампов и трафаретов. Чтобы более подробно узнать информацию о конкретном индустриальном изделии, рассмотрим трактовку каждой буквы и цифры в маркировке П 60-10-8 АIV-2 по Серии 1.243.1-5 :
1. П - тип конструкции - панель беспустотная;
2. 60 - длина;
3. 10 - ширина;
4. 8 - нагрузка;
5. АIV - класс напрягаемой арматуры;
6. 2 - конструктивные особенности.
Как на самом строительном изделии, так и в проектной документации указывают дату производства, номер партии, логотип предприятия-производителя, массу и штамп ОТК.
Основные характеристики и изготовление
Выпуск железобетонных конструкций П 60-10-8 АIV-2 осуществляется на специализированном заводе согласно нормам Серии 1.243.1-5. В данном техническом документе прописана технология производства, а так же указано основное сырье, из которого изготавливается строительное изделие. Согласно регламенту, за прочную основу принимается тяжелый бетон класса B20. Показатель морозостойкости и водонепроницаемости устанавливается индивидуально согласно ГОСТ 10060-87 и зависит от условий климата, где осуществляется застройка. Обычно марка водонепроницаемости назначается в пределах W4 и W6. Помимо прочной основы, элементы приобретают дополнительную прочность за счет армирования. Согласно нормам ГОСТ 10884-81 применяется напрягаемая арматура из стали класса Ат-IVc и Aт-IVк, а так же А-IV. Предварительное напряжение арматуры проводится электротермическим натяжением стержней. В качестве ненапрягаемой арматуры применяется арматурная проволока класса Bp-I по ГОСТ 6727-80. Для облегчения монтажа используются монтажные петли, которые запроектированы по ГОСТ 5781-82. Все металлические детали следует обрабатывать антикоррозионным раствором. Контрольные проверки и испытания проводятся в соответствии со всеми нормами и правилами, которые прописаны в действующих нормативных документах. Конструкции проверяются на прочность, трещиностойкость, а так же осматривается поверхность и геометрия. По итогу всех необходимых проверок, панели получают технический паспорт.
Транспортировка и хранение
Панели перекрытий беспустотные П 60-10-8 АIV-2 транспортируются и складируются согласно ГОСТ 13015.4-84. Индустриальные элементы обязательно хранятся на отдельной территории, а те, что с браком убирают в другое помещение. Панели укладывают в рабочем положении в штабеля высотой не более двух метров с применением прокладочного материала, а так же детали должны быть хорошо закреплены специальными фиксаторами. Погрузочно-разгрузочный комплекс работ проводится при помощи специализированной техники, с соблюдением техники безопасности. При полном соблюдении всех норм и правил, строительные конструкции доставят к заказчику в полной целостности и сохранности.

