О товаре:
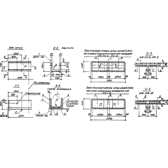
- Длинна: 5970 мм.
- Ширина: 1480 мм.
- Высота: 1320 мм.
- Вес: 6300 кг.
- ГОСТ, Серия: Серия 3.006-2 скачать
- Объем бетона: 2,52 м3
- Геометрический объем: 11,663 м3
Стандарт изготовления изделия: Серия 3.006-2
Лотки теплотрасс Л 13-15 (3.006-2) представляют собой железобетонные элементы, которые имеют П – образную форму. Главная сфера применения изделий, является прокладка в них трубопроводов, возводимых на просадочных грунтах и в сейсмических районах. Железобетонные изделия обладают повышенными прочностными характеристиками, так как при эксплуатации они подвергаются воздействию агрессивной внешней среды.
Расшифровка маркировки
Лотки теплотрасс Л 13-15 (3.006-2) маркируют согласно требованиям действующих стандартов, а именно Серии 3.006-2. Встречается маркировка, которая имеет в своем составе дополнительные информационные данные. Не допускается вносить изменения в маркировку на готовых железобетонных изделиях. Знаки не только широко используется в технической документации, но и пишется прямо на изделиях для удобства при их сортировке. Рассмотрим подробно маркировку лотка Л 13-15 (3.006-2):
1. Л – лоток;
2. 13 – порядковый номер изделия;
3. 15 – нагрузка в тс/м2.
Маркировочные данные, как правило, дополняются логотипом предприятия, номером парии, датой производства изделия, для этого наносится черная несмываемая краска, которая имеет в своем составе компоненты, способствующие высокому сопротивлению атмосферным осадкам, влагоустойчивости. Также на лицевой части изделия указывается штамп отдела контроля качества.
Основные характеристики и изготовление
Выпуск лотков теплотрасс осуществляется на специально оборудованных заводах в полном соответствии с требованиями такого норматива, как Серия 3.006-2.При изготовлении лотков должен быть обеспечен систематический пооперационный контроль за качеством бетона, арматуры, сварных соединений и т.п.Технология производства для данного вида конструкцией представляет собой процесс вибропрессования. Железобетонные изделия запроектированы из бетона марки М200 и М300. Арматуру применяют класса А-I и A-III по ГОСТ 5781-75.Обнажение арматуры на поверхности железобетонного изделия не допустимо. При производстве, в лотках предусматриваются закладные детали, которые используются для крепления кабелей. Армирование изделий производится сварными сетками и каркасами. Для производств, не оснащенных оборудованием непрерывного действия, допускается изготовление каркасов из гнутых арматурных сеток. Железобетонные изделия нужно обрабатывать специальным составом, чтобы защитить их от воздействия агрессивной внешней среды. Необходимо обязательно произвести гидроизоляционную обработку, тем самым защитив изделие от воздействия грунтовых вод. Для удобства монтажа, лотки снабжаются подъемными петлями, для которых следует принимать сталь класса A-I по ГОСТ 5781-75. Готовая продукция должна быть принята отделом технического контроля предприятия-изготовителя. На изделии не должно быть никаких трещин, поверхность обязательно должна быть ровной и гладкой. При приемке следует особое внимание обращать на правильность маркировки и ориентирующих знаков согласно требованиям ГОСТ 13015-75.
Транспортировка и хранение
Хранение лотков теплотрасс осуществляется в штабелях и нельзя допускать провисания части изделия. Сохранность свойств и характеристик, которые были приобретены при производстве, зависят от грамотного обращения с железобетонной продукцией. Для хранения их сортируют по маркам и номерам партий. При погрузочно-разгрузочных работах необходимо соблюдать технику безопасности и осторожность, чтобы не повредить лотки. Их запрещено скидывать, подвергать толчкам и падениям.

