О товаре:
- Длинна: 2400 мм.
- Ширина: 2800 мм.
- Высота: 120 мм.
- Вес: 1925 кг.
- ГОСТ, Серия: Серия ИИ 03-02 скачать
- Объем бетона: 0,77 м3
- Геометрический объем: 0,8064 м3
Стандарт изготовления изделия: Серия ИИ 03-02
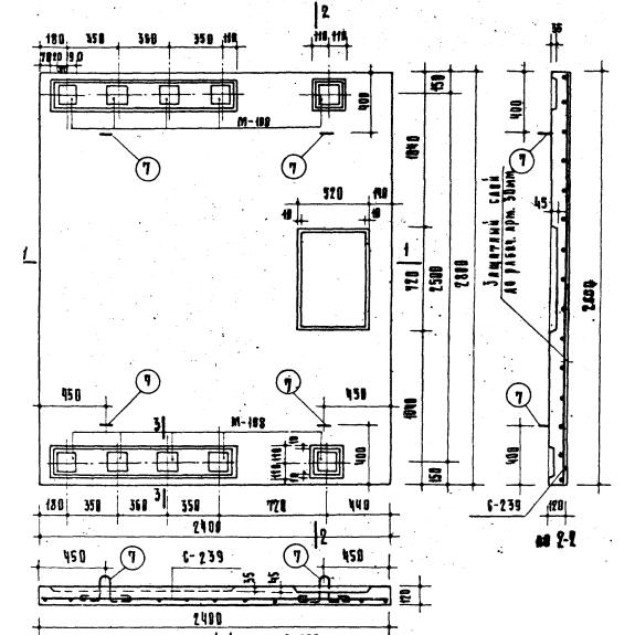
Плита входа ВП 1 представляет собой высокопрочное прямоугольное изделие, отличительной особенностью которого является наличие в центральной части углубления с трапециевидным поперечным сечением, и ряда аналогичных углублений, размещенных вблизи торцевых граней.
Применяются унифицированные плиты входа в гражданском строительстве при возведении пятиэтажных жилых домов и общественных сооружений. Они используются с другими элементами, запроектированными по Серии ИИ 03-02, и служат основой для обустройства эстетически привлекательного входа в подъезд. Конструкция устанавливается перед входом в подъезд, в последующем на ее поверхности крепятся экраны входа и стойки козырьков. Прямоугольное углубление в центральной части необходимо для размещения стальной решетки, служащей для чистки обуви от грязи и снега. Изделия отличаются высокой прочностью и продолжительным эксплуатационным сроком, а наличие закладных деталей позволяет надежно крепить смежные элементы. При разработке учитывались требования и рекомендации СНиП II-B.1-62.
Маркировочные обозначения
Наносимая на поверхность конструкций масляной краской символика позволяет отразить ключевые особенности элементов. Это дает возможность в значительной степени ускорить процедуру поиска нужных строительных материалов. Совокупность символов ВП 1 имеет следующую расшифровку:
1. ВП - тип конструкции - плита входа;
2. 1 - порядковый номер типоразмера изделия.
Не допускается вносить произвольные корректировки в маркировочные знаки.
Особенности производства
Все тонкости и нюансы, связанные с производством плит входа ВП 1, прописаны в Серии ИИ 03-02. По условиям нормативного документа изготовление конструкций следует осуществлять из бетона марки М200. Физико-химические показатели, к которым относится морозостойкость и водонепроницаемость, должны подбираться с учетом условий климата в регионе строительства. Важно соблюдать величину защитного бетонного слоя, прописанную на рабочих чертежах, для предотвращения раннего развития коррозионных образований.
Для армирования конструкций используются сетки, собранные с помощью контрактной точечной сварки в местах пересечения стержней. Для их производства используется сталь классов AI и AIII с нормативным сопротивлением 2400 и 4000 кг/см2 соответственно, отвечающая требованиям ГОСТ 5781-61. Монтажные петли следует изготавливать из стали класса AI с диаметром стрежней 10 мм. Закладные детали должны быть из полосовой стали, отвечающей требованиям ГОСТ 103-57. Мероприятия по антикоррозионной защите конструкций следует проводить в соответствии с требованиями СНиП III-B.6-62. Рекомендуется покрывать металлические закладные детали слоем цинка.
Поставка потребителю должна осуществляться исключительно после подтверждения эксплуатационных характеристик по средствам контрольных испытаний. Результаты заносятся в сертификаты, предоставляемые заказчику.
Транспортировка и хранение
Складирование и перевозку унифицированных плит входа ВП 1 необходимо осуществлять с соблюдением техники безопасности, производя укладку по специальным схемам, исключающим вероятность возникновения механических повреждений. Погрузочно-разгрузочные работы должны производиться за строповочные петли специализированной техникой, оборудованной захватными механизмами, обеспечивающими равномерное распределение нагрузки в стропах. Важно осуществлять поэтапный контроль производственного процесса, транспортировки и хранения железобетонных конструкций.

